蜀香格格中餐廳裝修工程
| 項目名稱 | 蜀香格格中餐廳裝修工程 | 行業屬性 | 酒店/餐飲/會所 |
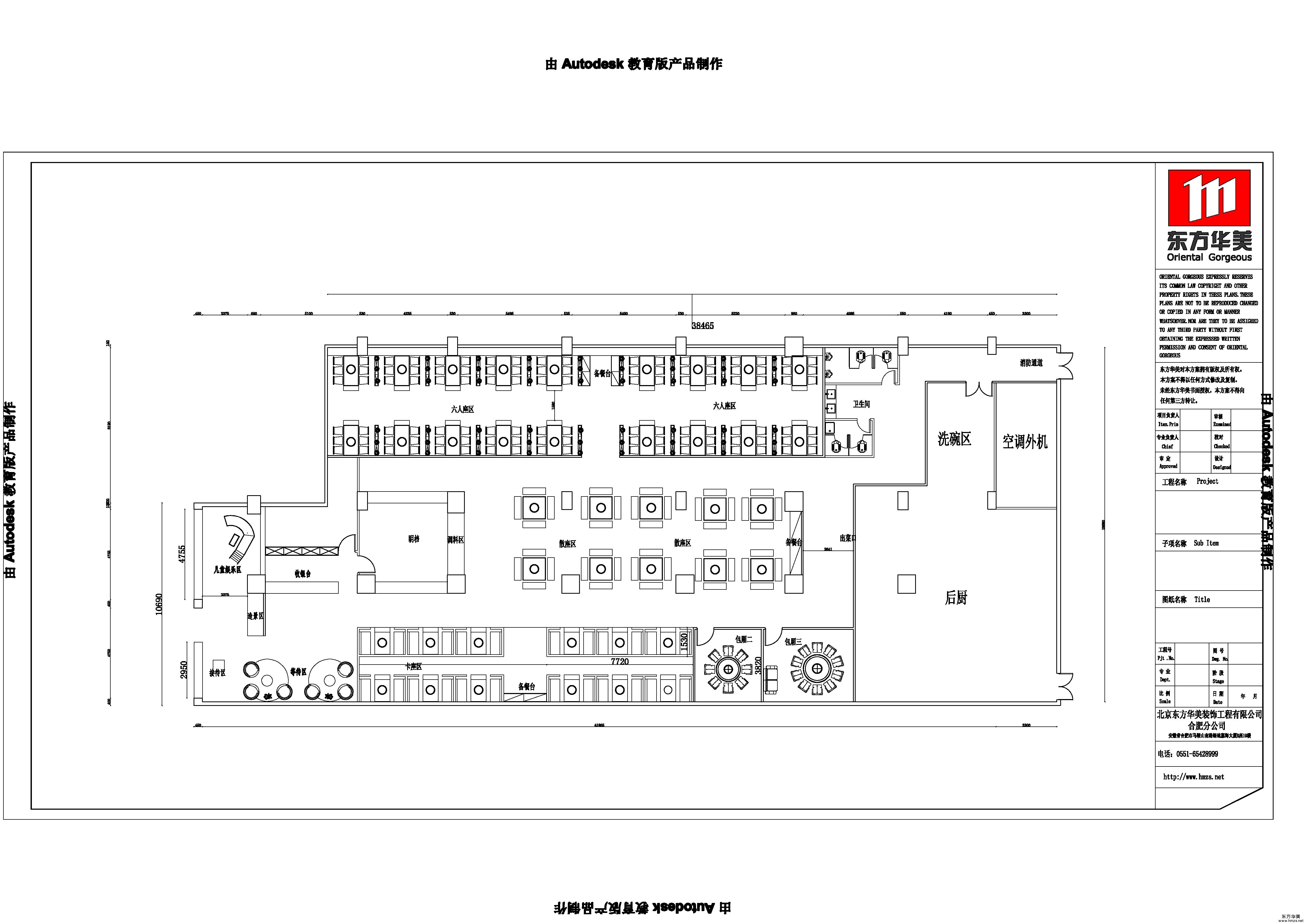
| 項目地址 | 北京市東城區東長安街33號 | 項目造價 | 25.2萬 |
| 主關鍵詞 |
▄原建筑結構分析: 裸露的磚墻給人自由的感覺,特色的吊燈則烘托了用餐的氣氛。木飾面裝飾空間,與紅色帷幔相搭配,可以保證一個私密的用餐空間。上方的綠植點綴空間,使空間里充滿了生機。
▄設計需求: 設計師采用了臉譜、辣椒、綠植及木質材料等,凸顯了蜀國獨特風情,蘊藏的濃濃地川國特色,在這個空間里,讓你深入體驗田園的淳樸,與濃濃的魚頭椒香,真真的誘惑你的舌尖,挑逗你的味蕾。
▄設計風格定位: 裸露的磚墻給人自由的感覺,特色的吊燈則烘托了用餐的氣氛。木飾面裝飾空間,與紅色帷幔相搭配,可以保證一個私密的用餐空間。上方的綠植點綴空間,使空間里充滿了生機。


北京鑄誠大廈辦公裝修工程
北京銀河SOHO辦公裝修工程
301醫院裝修工程
